Добро пожаловать на http://vipplan.ru

Випплан Конаково - это тысячи проектов домов в нашем каталоге!

Вы всегда сможете найти для себя проект дома вашей мечты! Даже если этого не случилось, мы готовы в любую минуту предложить проект индивидуального дома.

Забыли пароль?
Вы еще не регистрировались?

Перейдите по ссылке ниже на страницу регистрации.

Регистрация...

Внимание!!!

В проектную документацию могут быть внесены изменения любой сложности, в соответствии в Вашими пожеланиями!

Полезные статьи

Проект дома

Строительство дома начинается с подготовительного этапа, основной частью которого является проект. Разработка дизайнерского проекта сопровождается оформлением документов после выбора участка....

Комбинированные дома

Посмотрите, насколько далеко шагнула архитектура за последние десятилетия. Сколько изменилось в облике современных городов. А задумывались ли наши родители, о том что они увидят необыкновенные небоскребы и элитные многоквартирные дома, чьи фасады напоминают обруганную капиталистическую действительность. У людей появилась возможность построить дом за городом и в тишине на природе, реализовать любые дизайнерские фантазии. Те, кто может позволить себе частный дом, не ограничены финансами. Для многих частный дом – это показатель их материального благополучия, поэтому никто из них не хочет испол...

Проекты домов и коттеджей > Каталог проектов домов > Одноэтажный дом с двумя спальнями, кабинетом и террасой Vg3671

Одноэтажный дом с двумя спальнями, кабинетом и террасой Vg3671

Одноэтажный дом с двумя спальнями, кабинетом и террасой
Зарегистрируйтесь

Проект № Vg3671


Техническое описание
Общая площадь: 213.27 м2
Жилая площадь: 109.67 м2
Высота здания: 7.04 м
Размеры дома: 18.97м×16.62м
Кол-во комнат: 4
Цокольный этаж: нет
Гараж: нет
Мансарда: нет

Kонструкция
Фундамент: свайный
Перекрытия: монолитные

Архитектурный раздел
Конструктивный раздел
АР+КР - 64 000 (Со скидкой 20%)
Одноэтажный дом с двумя спальнями, кабинетом, террасой с отделкой облицовочным кирпичом. Фундамент - свайно-ростверковый буронабивной. Наружные стены здания - газобетонные блоки толщиной с утеплением ППС, воздушный зазор и отделкой облицовочным кирпичем. Внутренние стены здания -газобетонные блоки. Перегородки здания - газобетонные блоки. Пол этажа - пол по грунту. Крыша - многоскатная. Кровля - металлочерепица. Окна — металлопластиковые.
Генплан застройки участка / Паспорт проекта 7000 руб / 10000 руб
Инженерный раздел (полный) 106500 руб
Смета на строительство 53250 руб
Теплотехнический расчет материалов стен Бесплатно
Стоимость проекта со незначительнми изменениями 74650 руб
Стоимость проекта со средними изменениями* 90700 руб
Стоимость проекта со значительными изменениями** 94900 руб

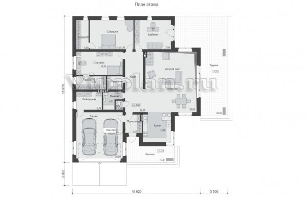
План первого этажа


Прихожая - 5,07 м2
Гараж - 36,00 м2
Бойлерная- 7,71 м2
Ванная - 4,51 м2
С/у - 1,08 м2
Кладовая - 3,43 м2
Гардероб - 6,51 м2
Спальня - 18,30 м2
Гардероб - 6,08 м2
Спальня - 21,47 м2
Кабинет - 17,86 м2
Холл - 19,35 м2
Гостиная - 52,04 м2
Кухня - 13,86 м2
Одноэтажный дом с двумя спальнями, кабинетом и террасой Одноэтажный дом с двумя спальнями, кабинетом и террасой Одноэтажный дом с двумя спальнями, кабинетом и террасой Одноэтажный дом с двумя спальнями, кабинетом и террасой

Модификации проектов

Внесение изменений и привязка к участку строительства

В любой из проектов от компании VIPplan - Конаково по вашему желанию могут быть внесены изменения в материалы стен, материалы наружной отделки дома, а также будет произведена адаптация проекта под конкретный регион строительства (с учетом грунтов региона, геологических особенностей вашего участка и местных климатических условий) - БЕСПЛАТНО !!! (кроме проектов со скидкой и проектов наших партнеров).

Любой из проектов, размещенных на сайте konakovo.vipplan.ru мы можем выполнить из требуемых вам строительных материалов: ячеистый бетон (газобетон, пеноблок), керамоблок, кирпич, шлакоблок, бетонный блок, дерево (брус, клееный брус), каркасная технология (деревянный каркас, металлокаркас (ЛСТК)).

Фасад дома и его наружную отделку так же возможно выполнить с применением различных облицовочных материалов: структурной штукатурки, (с утеплителем и без), сайдингом (пластиковый или металлосайдинг), фиброплитами, кирпича.

 
6 Избранные
проекты

Доставка проектов по России: Москва (Московская область), Санкт-Петербург (Ленинградская область), Краснодар, Ростов-на-Дону, Ставрополь, Сочи, Волгоград, Новосибирск, Белгород, Брянск, Воронеж, Саратов, Хабаровск, Астрахань, Нальчик, Владикавказ, Екатеринбург, Тюмень, Самара, Нижний Новгород, Казань, Пермь, Уфа, Челябинск, Красноярск, Ханты-Мансийск, Иркутск, Курган, Оренбург, Омск, Томск, Барнаул, Новокузнецк, Кемерово, Абакан, Чита, Якутск, Южно-Сахалинск, Петропавловск-Камчатский и страны ближнего зарубежья: Белоруссия, Украина, Казахстан